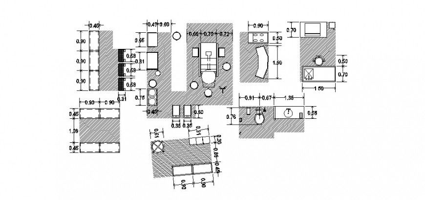
Office parts plan with furniture auto-cad drawing details dwg file
Description
Office parts plan with furniture auto-cad drawing details that includes a detailed view of reception area with waiting area and cabin and computer lab with counseling room and library and conference room details, furniture details, dimensions and measure details and much more of office details.
Uploaded by:
Eiz
Luna

