Elevation of gard house with construction detail in AutoCAD
Description
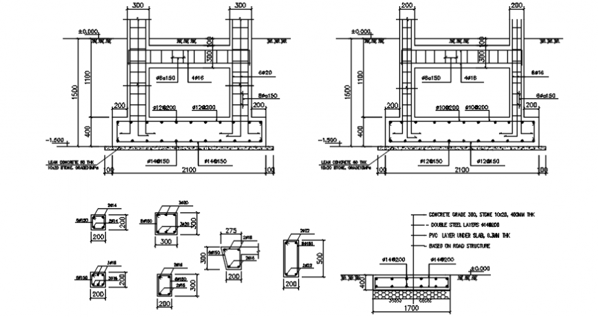
Elevation of gard house with construction detail in AutoCAD elevation of house include with wall and base area with column and distance between two support and wall with wall support and plan of column and concrete view in base area.
File Type:
DWG
File Size:
509 KB
Category::
Construction
Sub Category::
Construction Detail Drawings
type:
Gold

Uploaded by:
Eiz
Luna

