Column plan and elevation with its mounting in AutoCAD file
Description
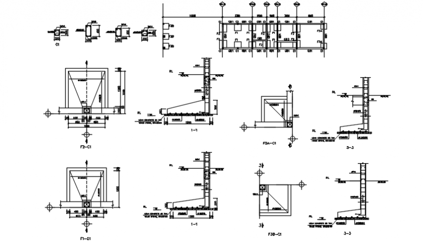
Column plan and elevation with its mounting in AutoCAD file plan include area of column with different size and elevation with wall and wall support area and position of column in plan of construction view.
Uploaded by:
Eiz
Luna

