Drawing of public house 2d detail AutoCAD file
Description
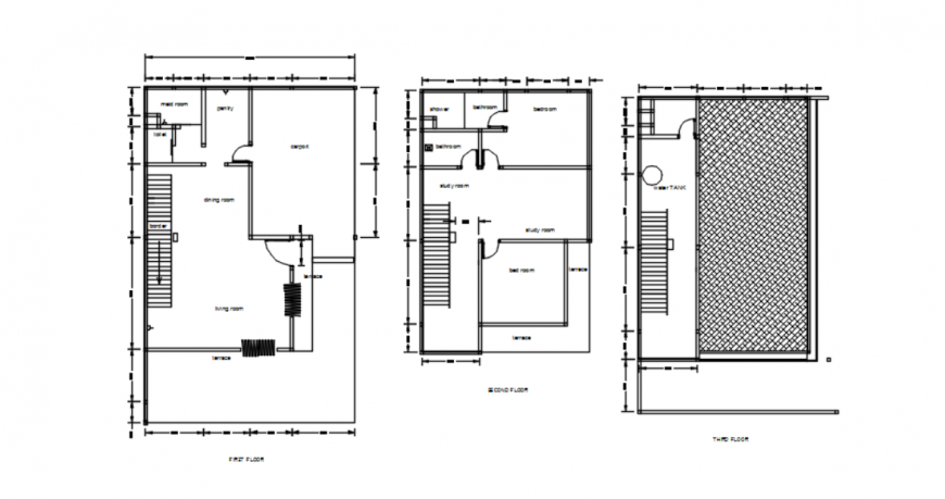
Drawing of public house 2d detail AutoCAD file which includes top view of the first floor, second and third floor with details of the kitchen, bedroom, toilets, terrace, bedroom, water tank, staircase, study room, carport etc.
File Type:
DWG
File Size:
356 KB
Category::
Urban Design
Sub Category::
Architecture Urban Projects
type:
Gold
Uploaded by:
Eiz
Luna

