Drawing of hotel detail AutoCAD file
Description
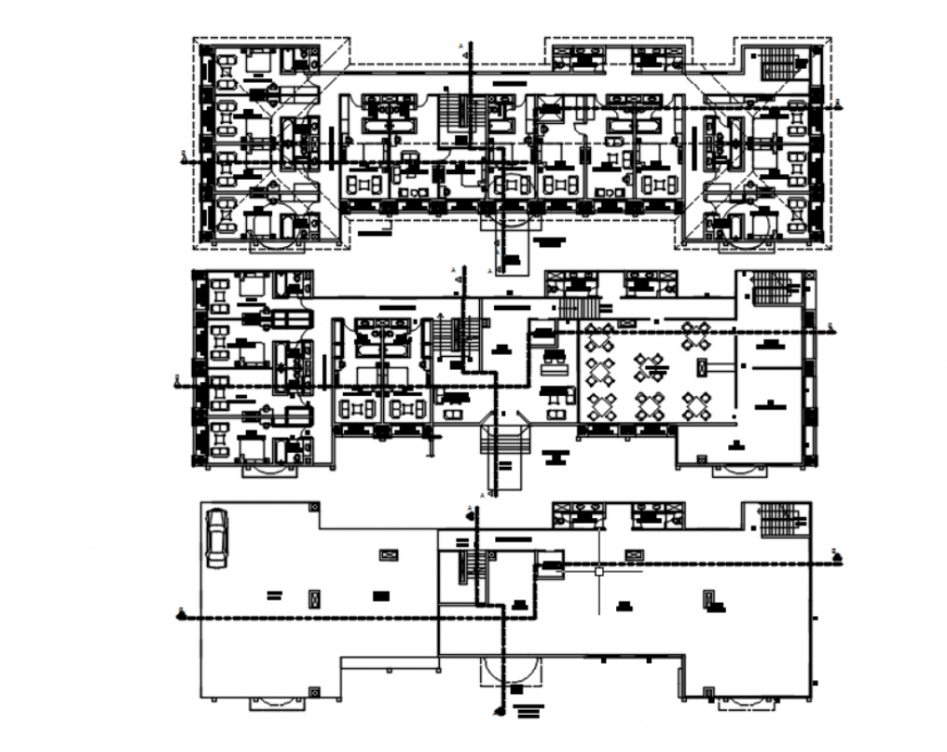
Drawing of hotel detail AutoCAD file which includes top view of ground floor with detail of restaurant, kitchen, bar, lobby, rooms, toilets, balcony, staircase detail, lift and first floor with lobby, rooms, toilets, balcony, staircase detail, lift and also includes basement plan with parking details, lift, staircase etc.
Uploaded by:
Eiz
Luna

