Electrical installation plan with its symbol for hospital in auto cad
Description
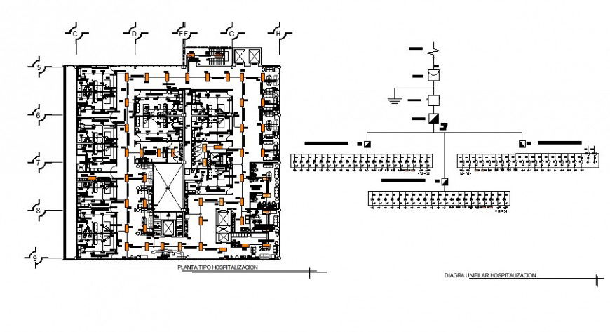
Electrical installation plan with its symbol for hospital in auto cad plan include detail of hospital area medical consultant room patient area and single electric line with electrical way and control system with electric circuit diagram.

Uploaded by:
Eiz
Luna

