House electrical installation details 2d view in autocad
Description
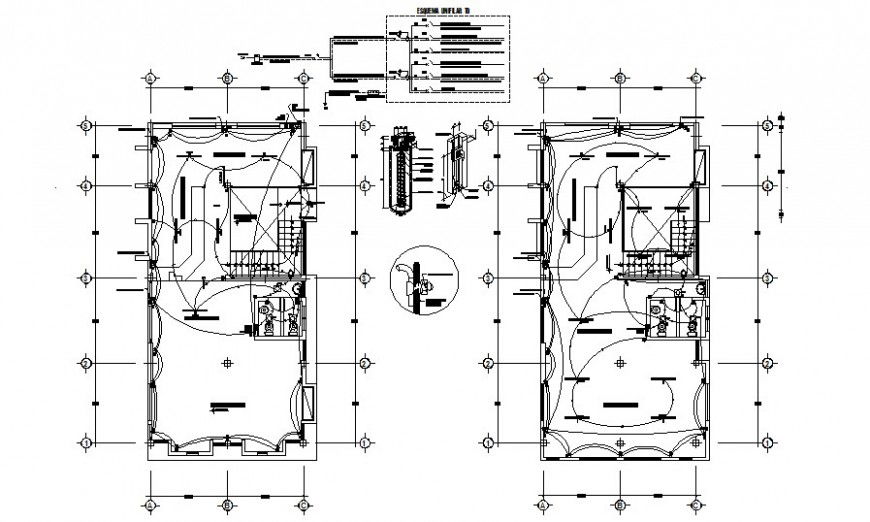
House electrical installation details 2d view in autocad that shows electrical wirings details and floor plan details of the building. electrical fitting and installation details with dimension and hidden line details are also shown in the drawing.

Uploaded by:
Eiz
Luna

