Uni familiar residential building floor plan and electric installation details dwg file
Description
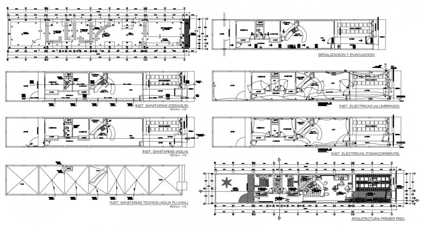
Uni familiar residential building floor plan and electric installation details that includes a detailed view of main entry house door, drawing room and living room with family hall details kitchen and dining area, indoor staircases and laundry area and balcony, details and bedroom or master bedroom, toilets and bathroom, electrical layout and much more of apartment building details.

Uploaded by:
Eiz
Luna

