Parking space area details 2d drawing in autocad
Description
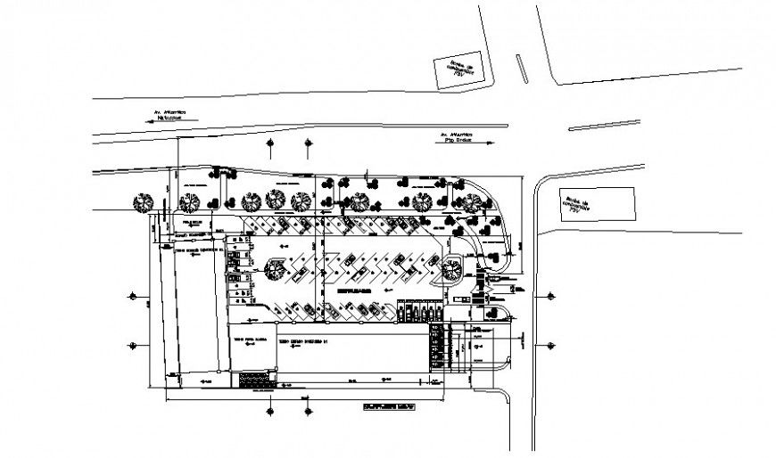
Parking space area details 2d drawing in autocad that shows work plan of building blocks with 30 degree parking system details and landscaping area and trees plants details. Road network details and section line details are also shown in the drawing.

Uploaded by:
Eiz
Luna
