2d details of house detail AutoCAD file
Description
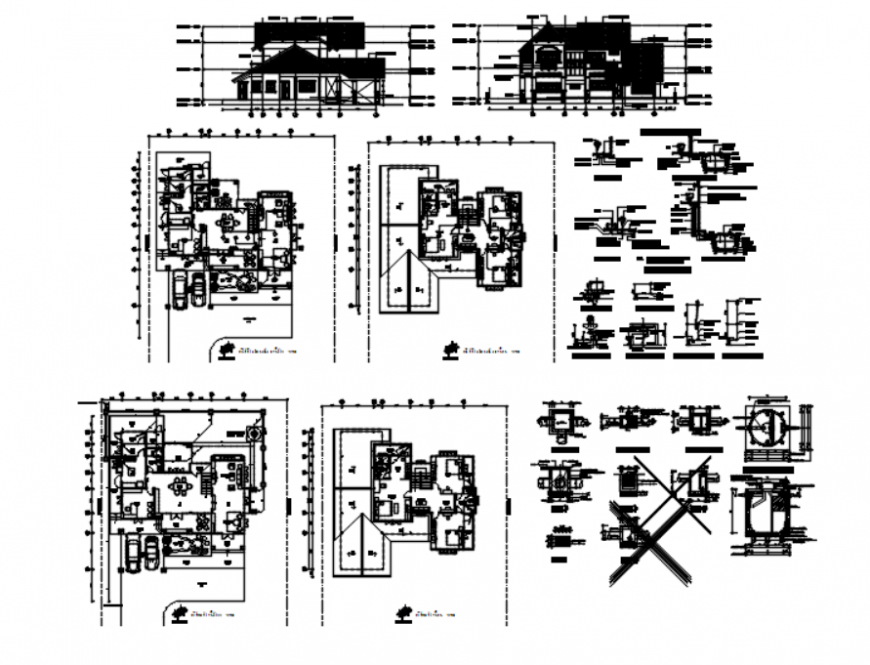
2d details of house detail AutoCAD file which includes a ground floor plan with details of the entrance, parking, drawing room, toilet, kitchen, dining, bedrooms, first floor with bedroom, toilet, terrace, staircase details etc and also includes electrical details, and other details.
Uploaded by:
Eiz
Luna

