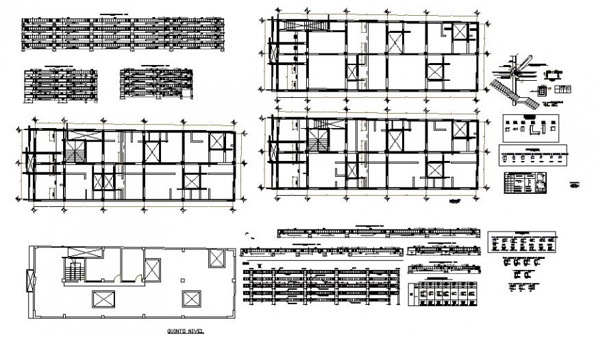
Harpoon and fifth floor plan of hospital in auto cad
Description
Harpoon and fifth floor plan of hospital in auto cad include detail of area with wall and wall support detail different medical consultant’s patient room washing area laundry rooftop plan with necessary dimension.

Uploaded by:
Eiz
Luna

