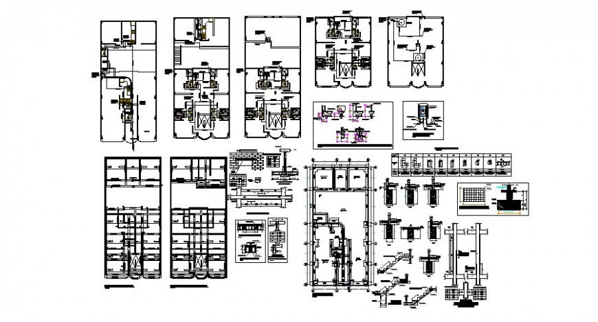
Foundation plan with stair detail of hotel in auto cad
Description
Foundation plan with stair detail of hotel in auto cad include detail of area with column and column support area with wall and detail of stair include step support of stair fill step stretch area and concrete detail and detail of necessary dimension.

Uploaded by:
Eiz
Luna
