Finer star hotel suite room plan and different sectional detail in auto cad
Description
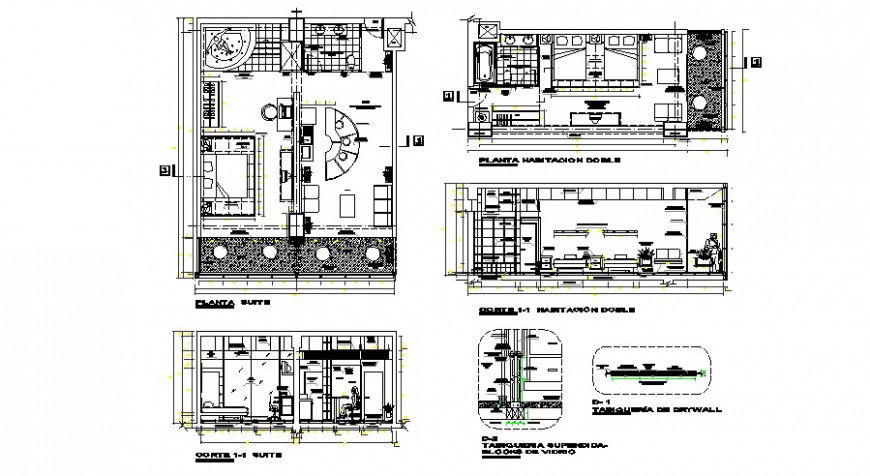
Finer star hotel suite room plan and different sectional detail in auto cad include plan detail entrance room, bath tub washing area kitchen set laminated glass in wall sofa table flower pot wall support and necessary dimension in sectional view.

Uploaded by:
Eiz
Luna

