Hotel with museum floor plan and elevation in auto cad software
Description
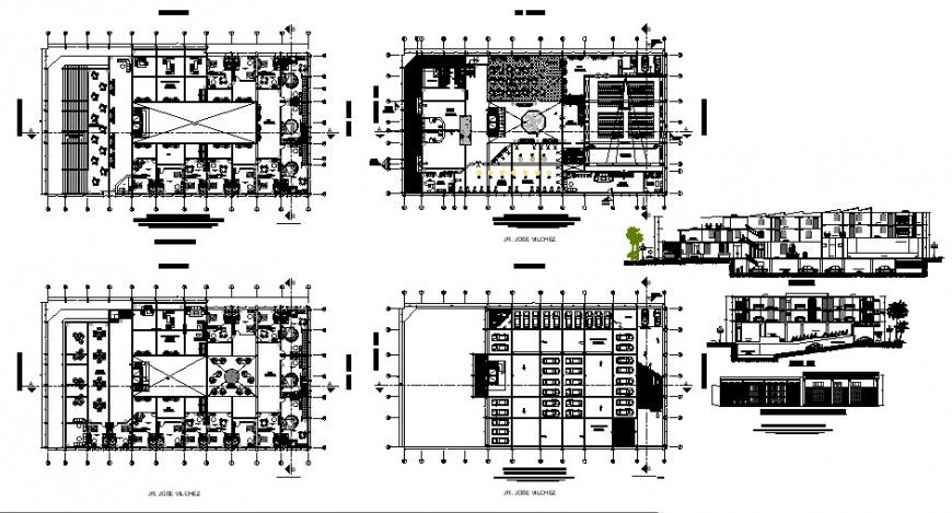
Hotel with museum floor plan and elevation in auto cad software plan include detail of entry way dining area meeting room empty area hall washing area cyber net cultural exhibition room auditorium with projector with necessary dimension and elevation with floor and floor level.

Uploaded by:
Eiz
Luna
