Drawing of commercial building 2d details AutoCAD file.
Description
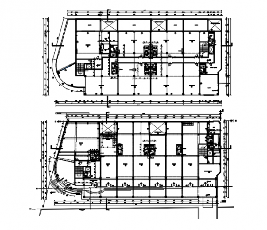
Drawing of commercial building 2d details AutoCAD file which includes a ground floor plan with details of entrance, staircase, toilets, shop etc, third floor plan office, balcony, staircase, toilets, lift etc.
Uploaded by:
Eiz
Luna

