Drawing of network general drain system AutoCAD file
Description
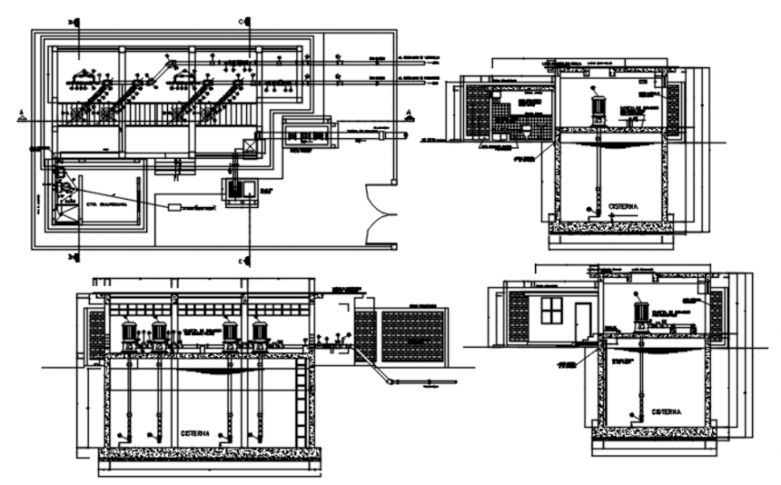
Drawing of network general drain system AutoCAD file which includes a plan with details of CTO. guardian, impulsion piping, and also includes a section with details of tank, pumping box etc.
Uploaded by:
Eiz
Luna

