Drawing of marla final house 2d model AutoCAD file
Description
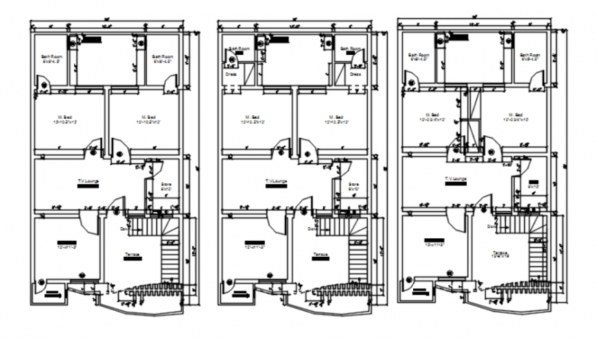
Drawing of marla final house 2d model AutoCAD file which includes a ground plan with details of the drawing room, porch, powder room, tv lounge, master bedroom, kitchen, bathroom, passage etc and first-floor plan with details of terrace, bedroom, master bedroom, bathrooms, toilets etc.
Uploaded by:
Eiz
Luna

