Drawing of billboard detail AutoCAD file
Description
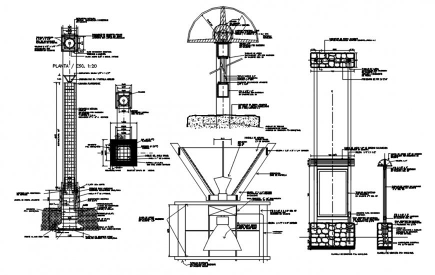
Drawing of billboard detail AutoCAD file which includes urban distinction, plenty of shoes, detail of luminaire, elevation, and section with dimension etc.
Uploaded by:
Eiz
Luna
Drawing of billboard detail AutoCAD file which includes urban distinction, plenty of shoes, detail of luminaire, elevation, and section with dimension etc.
Uploaded by:
Luna