Drawing of constructive steel structure details AutoCAD file
Description
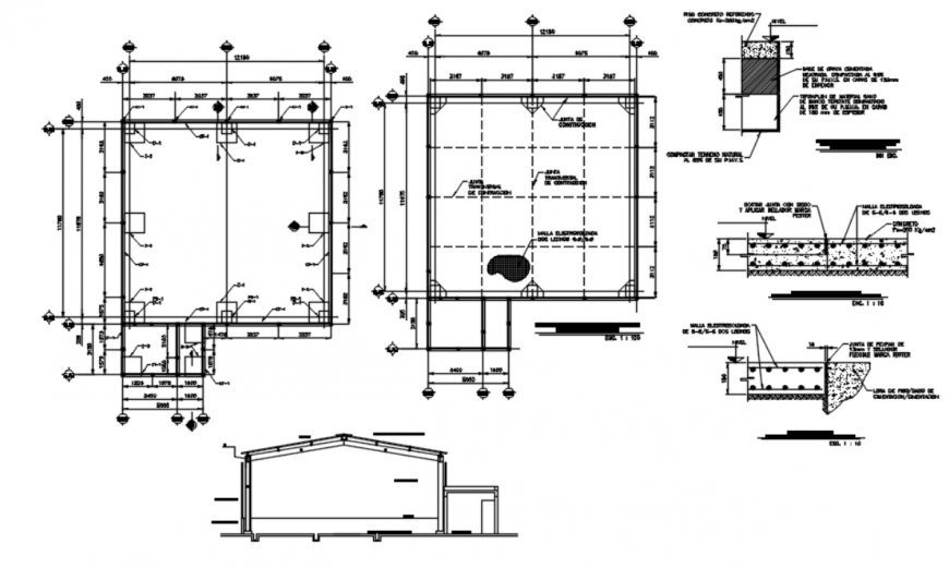
Drawing of constructive steel structure details AutoCAD file which includes foundation plan, section, floor slab plan with details of centerlines and dimension and also includes a constructive section of floor slab etc.
Uploaded by:
Eiz
Luna

