Roofing shade structure plan and elevation details in autocad
Description
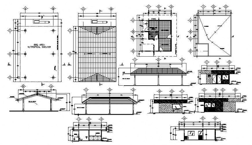
Roofing shade structure plan and elevation details in autocad that shows roof plan details with details of roofing material and column supporters details. Section line and sectional details of the structure is also shown in the drawing.
File Type:
DWG
File Size:
733 KB
Category::
Construction
Sub Category::
Construction Detail Drawings
type:
Gold
Uploaded by:
Eiz
Luna

