AutoCAD File of Single Room House Plan Details for Easy Design
Description
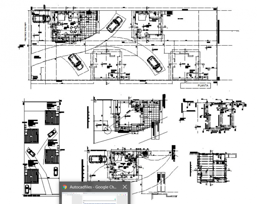
Get detailed AutoCAD files of single room house plans, Perfect for architects and builders for efficient space planning and construction layout design
Uploaded by:
Eiz
Luna
Get detailed AutoCAD files of single room house plans, Perfect for architects and builders for efficient space planning and construction layout design
Uploaded by:
Luna