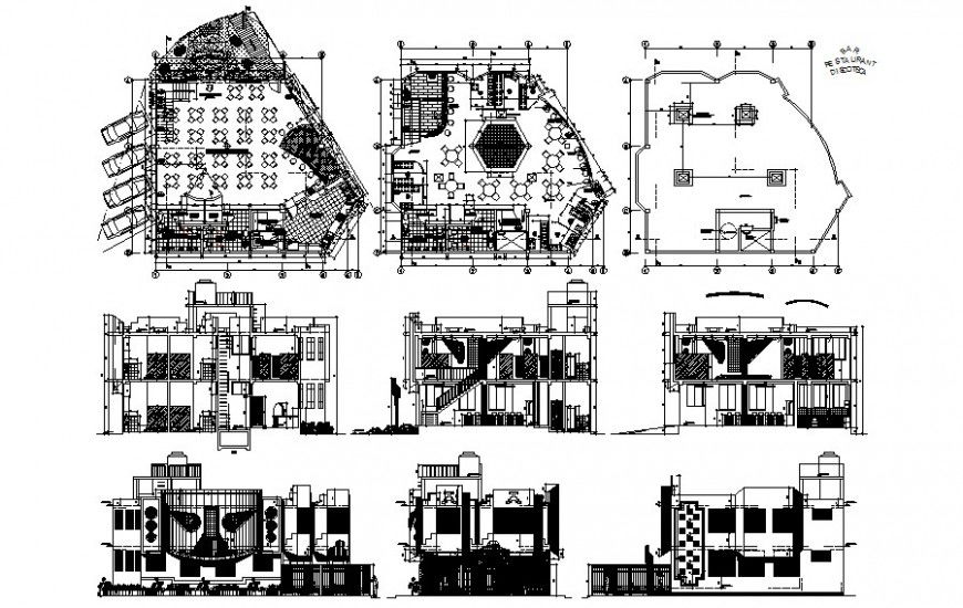
Mexcian restaurant building plan elevation and section dwg file
Description
Mexcian restaurant building plan elevation and section dwg file that shows work plan of building with furniture blocks details and building different sides elevation and sectional details are also shown in the drawing.

Uploaded by:
Eiz
Luna

