Detail Drawing of Medical Clinic 2D View AutoCAD Software File
Description
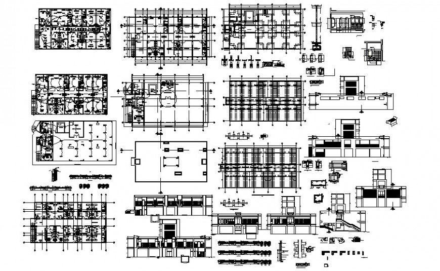
Detail drawing of medical clinic 2d view autocad software file that shows a work plan of building with dimension and hidden line details. Floor level details and building different sides of elevation and sectional details are also shown in this AutoCAD drawing.

Uploaded by:
Eiz
Luna

