House plan details with electrical installation autocad file
Description
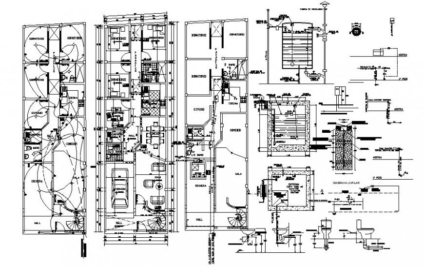
House plan details with electrical installation autocad file that shows a work plan of building with furniture blocks details and electrical installation details. Dimension hidden line details and parking space details are also included in the drawing.

Uploaded by:
Eiz
Luna

