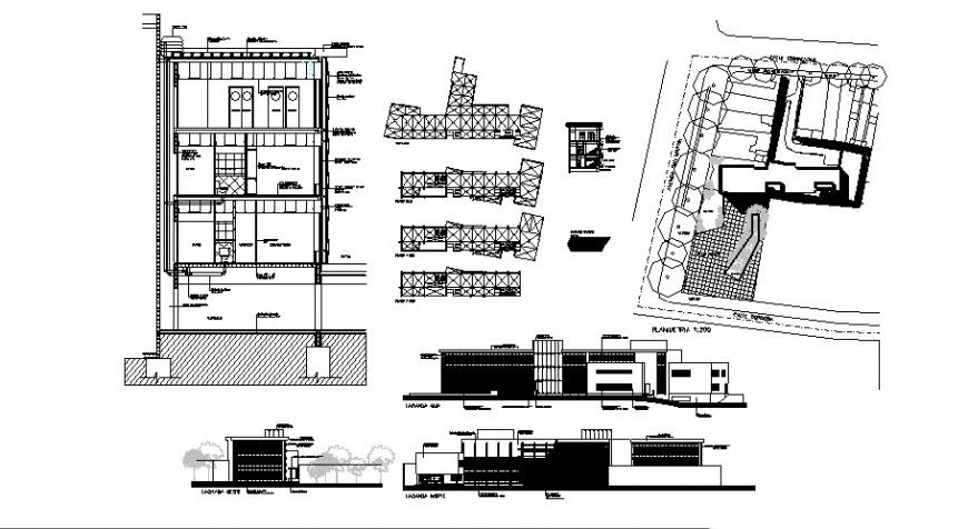
Structure detail of medical Centre in auto cad software
Description
Structure detail of medical Centre in auto cad software include detail of wall and wall support round bar supporting structure I beam and channel view with room of medical Centre and floor plan with support and its structure.
Uploaded by:
Eiz
Luna

