Architecture plan elevation and section view of house in auto cad
Description
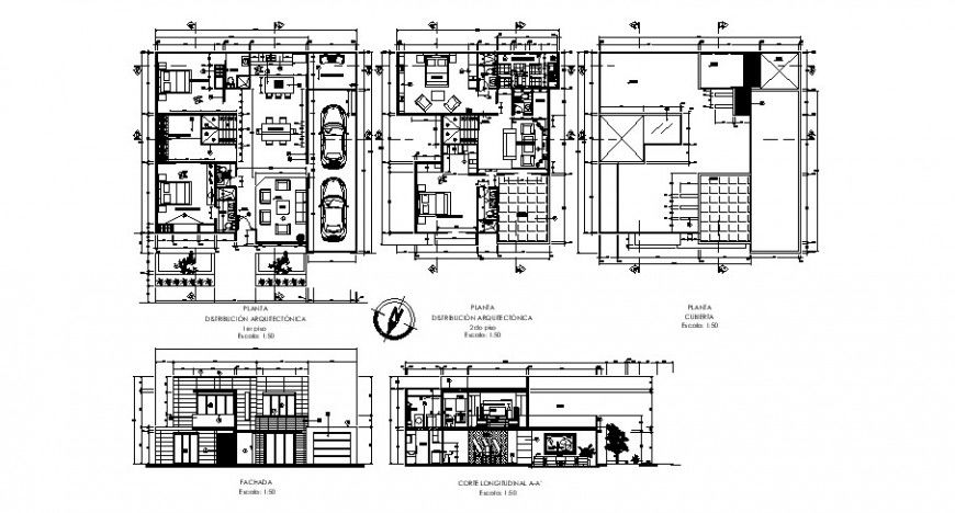
Architecture plan elevation and section view of house in auto cad floor plan include detail of entry way garden parking area bedroom kitchen and washing area and elevation and sectional view include floor and floor level with view of room.
Uploaded by:
Eiz
Luna

