Small cafe building details plan and elevation drawing in autocad
Description
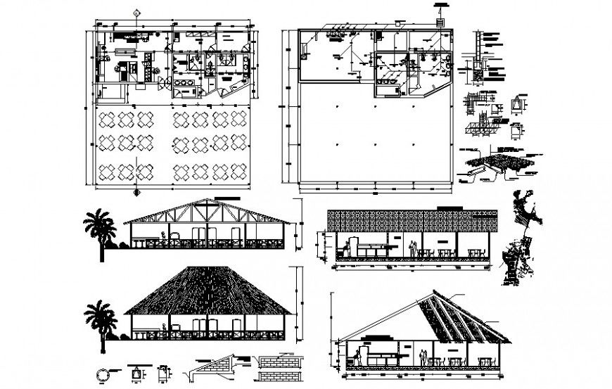
Small cafe building details plan and elevation drawing in autocad that shows work plan of building units with roofing structure details at ceiling and furniture blocks details are also shown in the building. Different sides elevation and sectional details of the building are also shown in the drawing.

Uploaded by:
Eiz
Luna

