Drawing of residential apartments 2d view autocad file
Description
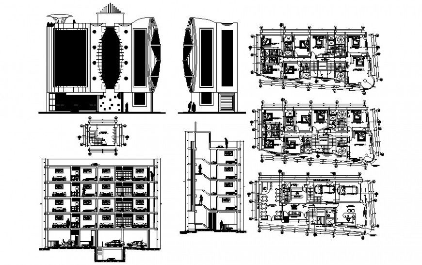
Drawing of residential apartments 2d view autocad file that shows apartment floor plan details with floor level and dimension hidden line details. Building different sides elevation and sectional details with floor leveling details are also shown in drawing.

Uploaded by:
Eiz
Luna

