Building an apartment work plan with electrical installation details autocad file
Description
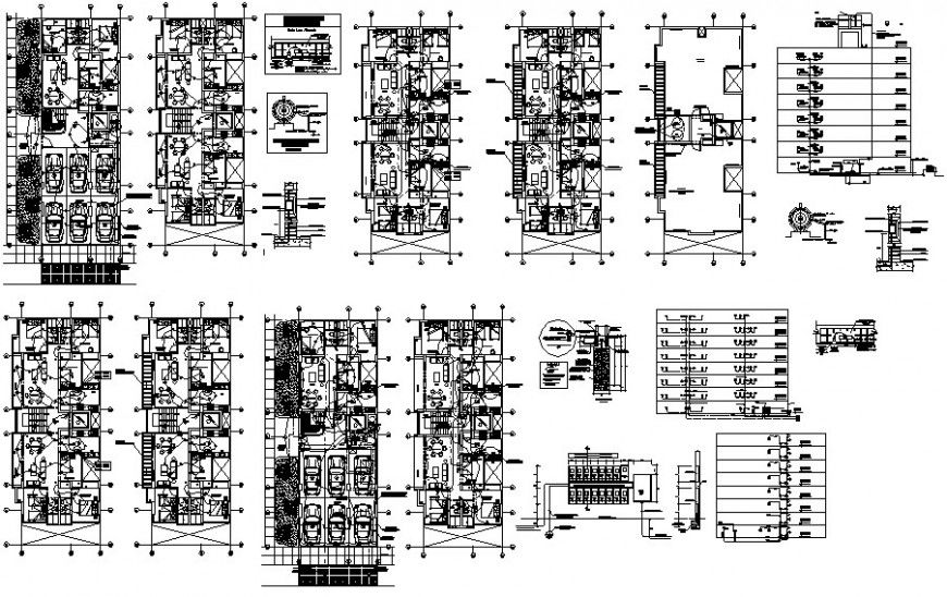
Building an apartment work plan with electrical installation details autocad file that shows floor plan details of building with electrical installation layout details and furniture blocks details in the building are also included in the drawing. Electrical circuits details flow diagram details are also shown in the drawing.

Uploaded by:
Eiz
Luna
