Projects
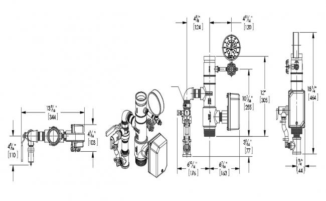
Plumbing
MORE DETAILS
Bracing detailing
Roof eave Structural Detail
Roof Truss Structural Detail
Floor plan