Projects
35’x50’ North Facing 2 BHK House Plan Drawing Download DWG File
MORE DETAILS
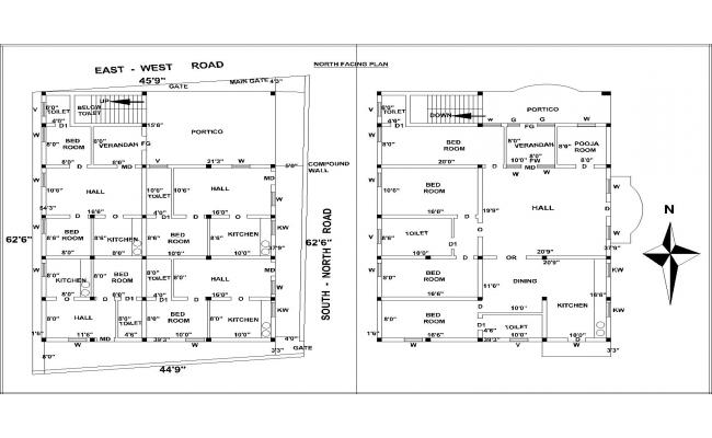
36’X59’ North Facing House Plan AutoCAD Drawing Download DWG File
29’3"x48’3" 2 Bedrooms House Plan Vastu Shastra Autocad Drawing DWG File
38’x45’ North Facing House Plan Drawing DWG File
21’X40’ North Facing Townhouse Plan Drawing AutoCAD DWG File
30’x42’3" North Facing 2 BHK House Plan Vastu Shastra CAD drawing
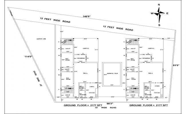
98’x80’ North Facing Residence House Plan Drawing DWG File
20’x46’ North Facing Home Plan Vastu Shastra CAD Drawing DWG File
22'6"’x40' North Facing House Plan Drawing Vastu Shastra DWG File
40’x60’ North Facing House Vastu Shastra Autocad drawing DWG File
40’x30’ North Facing Home Vastu Shastra Autocad Drawing DWG File
40’x55’ West Facing House Layout Plan AutoCAD Drawing DWG File