LOGIN
HOME
CATEGORIES
UPLOAD FILE
PRICING
HOUSE PLAN
ABOUT US
CONTACT US
Asif Sakharkar
Wadala Mumbai
Asif Sakharkar
Wadala Mumbai
2
Projects
My Files
Date
|
Sort by
Sort by :
Default (by Date)
A to Z
Z to A
AutoCAD Color Wheel
DWG
MORE DETAILS
Gold
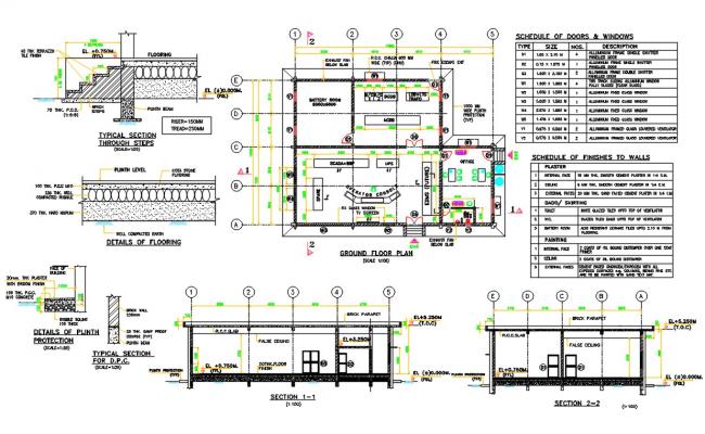
Office Building AutoCAD Drawing DWG File
DWG
MORE DETAILS
Gold
Sort by
Default (by Date)
A to Z
Z to A
Sort by Date
From
To