AL QOUZ
Projects
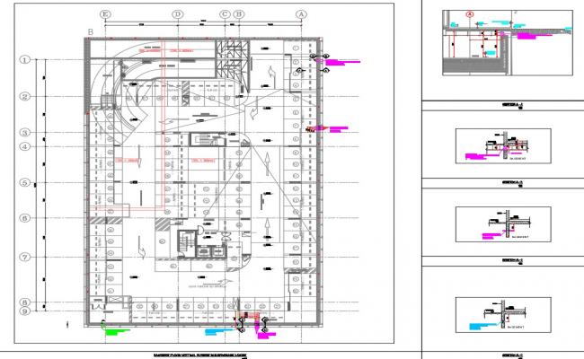
Builders Work Opening Layout For Basement And Ground Floor
MORE DETAILS
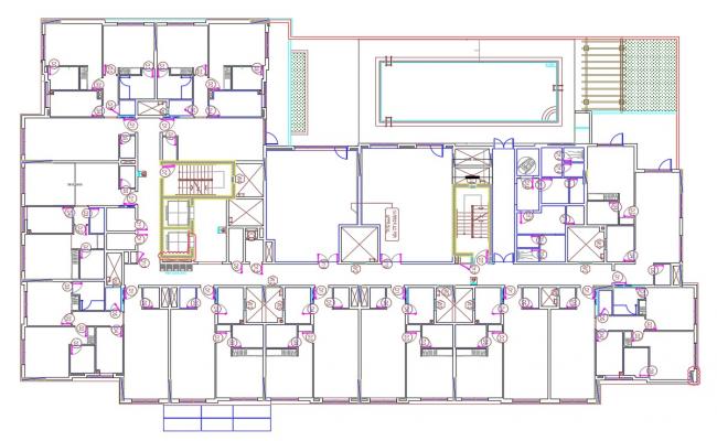
Office First Floor Plan Design AutoCAD drawing
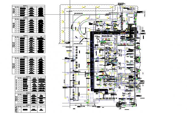
Full Electrical Drawing For Lightung Power in DWG File