Projects
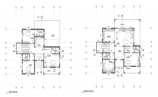
2 Storey House Plan With Sectional Elevation CAD Drawing
MORE DETAILS
3 Storey House Plan With Sectional Elevation CAD Drawing