Projects
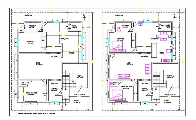
Architectural house floor plans for G+1 Building
MORE DETAILS
Architectural floor plans for G+1 storey
Architectural Residential floor plans