Projects
Banquet Hall Layout Plan with Reception Kitchen and Service Rooms
MORE DETAILS
Residential House AutoCAD DWG Plan with Elevations and Sections
Download Residential House Plan DWG with Elevation and Section
Water Heater Pipe Support and Valve Detail in AutoCAD File
Professional CAD Drawings 2 BHK Apartment Layout Plan
Creating Detailed House Elevation and Section Drawings
Compact house design prepared in DWG file structure
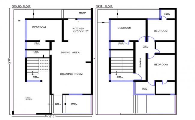
60X35 Feet House Layout Plan CAD Drawing Download DWG File
Android Measure App ARPlan Free Download APK File
ARPlan 3D APK for Android Download Free App
AutoCAD Architecture House Plan CAD Drawing
50X50 House Plan AutoCAD Drawing Download DWG File