velan nagar
Projects
buddha
MORE DETAILS
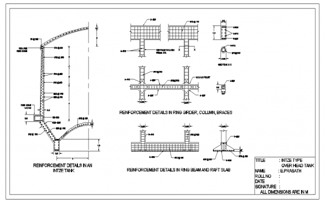
INTZ TYPE WATER TANK
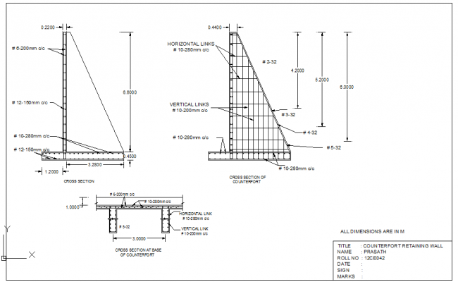
Counterfort retaining wall
Revit 3D House Model with Modern Architectural Design and Detailing