Projects
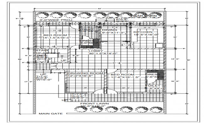
Modern house plan 2D CAD drawing with layout and furniture details
MORE DETAILS
Residential house plan PDF with layouts and furniture details