LOGIN
HOME
CATEGORIES
UPLOAD FILE
PRICING
HOUSE PLAN
ABOUT US
CONTACT US
coulibaly seydou
coulibaly seydou
1
Projects
My Files
Date
|
Sort by
Sort by :
Default (by Date)
A to Z
Z to A
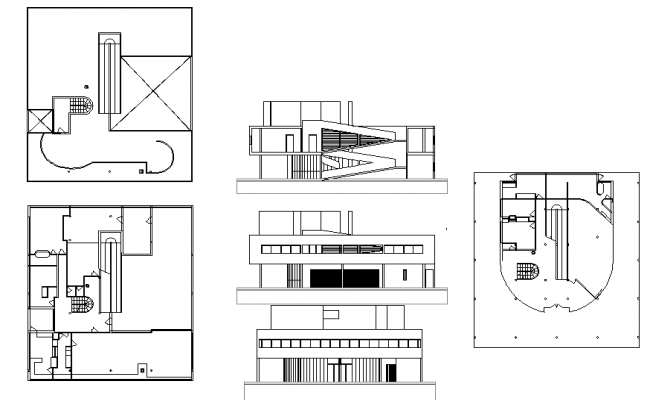
Villa Savoye AutoCAD DWG Drawing with Floor Plan and Elevation
DWG
MORE DETAILS
Gold
Sort by
Default (by Date)
A to Z
Z to A
Sort by Date
From
To