Column to beam joints details drawing in autocad
Description
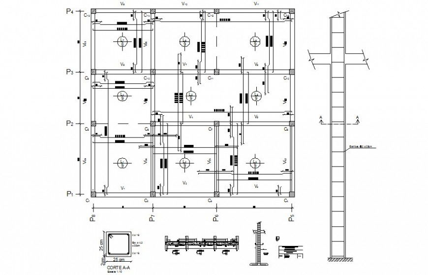
Column to beam joints details drawing in autocad which includes reinforcement details in tension and compression zone with column and beam structure. Hook up and bent bars with main and distribution bars details are also included in drawing.

Uploaded by:
Eiz
Luna

