Reinforcement Details in Structure 2D Drawing in AutoCAD DWG File
Description
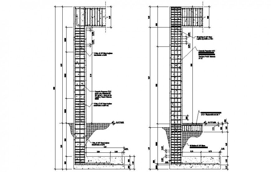
This AutoCAD DWG file provides detailed 2D reinforcement drawings for structural elements, including concrete masonry with reinforcement in tension and compression zones. The drawing includes dimensions, hidden lines, and stirrups to hold up bars in position. It is ideal for architects, engineers, and construction professionals involved in designing and planning reinforced concrete structures. The file offers a clear representation of reinforcement details, ensuring efficient workflow and compliance with construction standards.
File Type:
DWG
File Size:
202 KB
Category::
Construction
Sub Category::
Concrete And Reinforced Concrete Details
type:
Gold

Uploaded by:
Eiz
Luna

