Furnished house working plan 2d drawing in this autocad file
Description
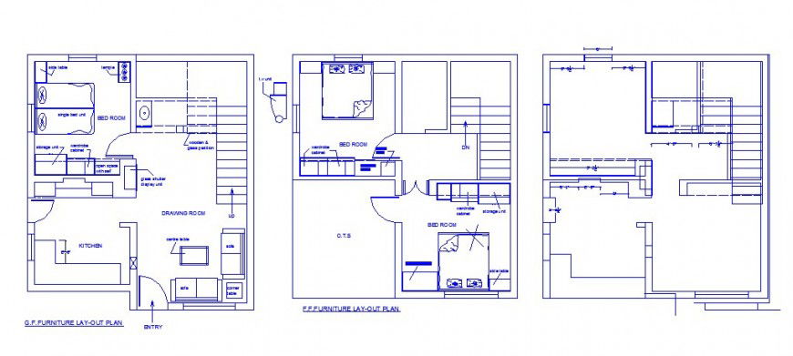
Furnished house working plan 2d drawing in this autocad file which included drawing room area detail, wall and flooring detail, bedroom area detail, kitchen and dining area detail, staircase detail, door and window units detail, dimension details, hidden line detail, Apartment is of three stories and it is an RCC structure.

Uploaded by:
Eiz
Luna

