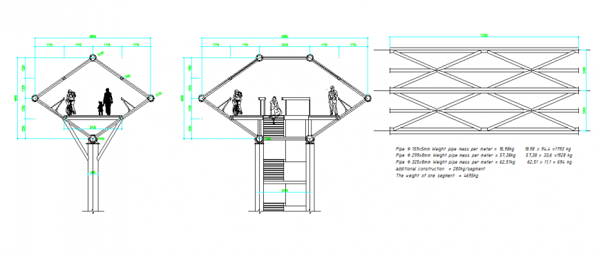
Bridge Section Detail in DWG file
Description
Bridge Section Detail in DWG file, Pipe ∅ 159x5mm Weight pipe mass per meter = 18,98kg 18.98 x 94,4 =1793 kg, additional construction = 280kg/segment, The weight of one segment = 4695kg
Uploaded by:
Eiz
Luna

