Plan, elevation and section detail bungalow autocad file
Description
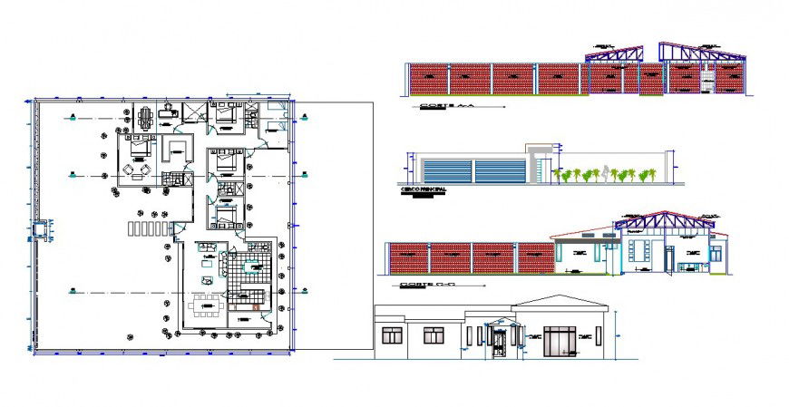
Plan, elevation and section detail bungalow autocad file, dimension detail, naming detail, section lien detail, front elevation detail, section A-A’ detail, section B-B’ detail, section C-C’ detail, roof section detail, landscaping detail in tree and plant detail, cut out detail, furniture detail in door and window detail, etc.
Uploaded by:
Eiz
Luna
