LOGIN
HOME
CATEGORIES
UPLOAD FILE
PRICING
HOUSE PLAN
ABOUT US
CONTACT US
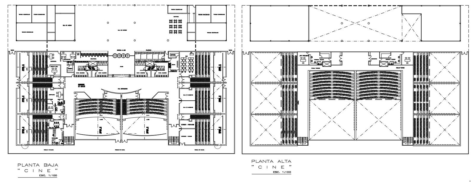
Auditorium Floor Plan
Home
Categories
Architecture
Multiplex Theater
Auditorium Floor Plan
Uploaded by:
Priyanka
Patel
View Profile
View Profile
Description
Download auditorium building design plan which shows building seating arrangement details along with floor level details and other unit details.
File Type:
DWG
File Size:
736 KB
Category::
Architecture
Sub Category::
Multiplex Theater
type:
Gold
Uploaded by:
Priyanka
Patel
View Profile
Download
Add to libary
find Latest
Related
Files