Floor plan layout details of international airport cad drawing details dwg file
Description
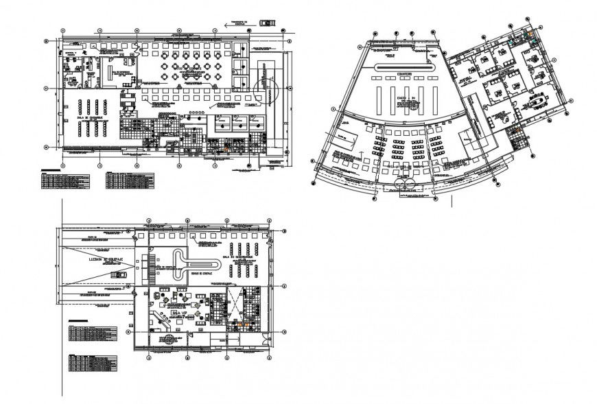
Floor plan layout details of international airport cad drawing details that includes a detailed view of multiple entry doors of different terminal, car parking area, indoor and outdoor garden area, main entry gate of airport with security check, waiting area, seating lounge, borading gates, ticket counters, shopping areas with shopping branded stores, food stores, cafeteria, toilets for male and female, luggage room, car parking area, main waiting area hall, interior details, furniture details, runways, transportation truck and much more of air port plan details.

Uploaded by:
Eiz
Luna

