House plan and electrical installation detail 2d view autocad file
Description
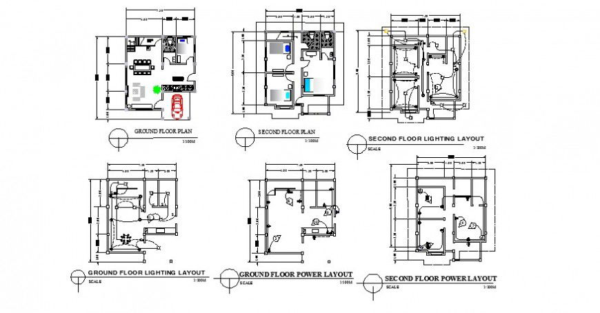
House plan and electrical installation detail 2d view autocad file, plan view detail, wall and flooring detail, furniture detail, scale 1:1000 detail, sanitary toilet and bathroom detail, door and window detail, dimension detail, Floor level detail, parking space detail, electrical wirings detail, earthing wires, RCC structure, etc.

Uploaded by:
Eiz
Luna

