Planning house detail dwg file
Description
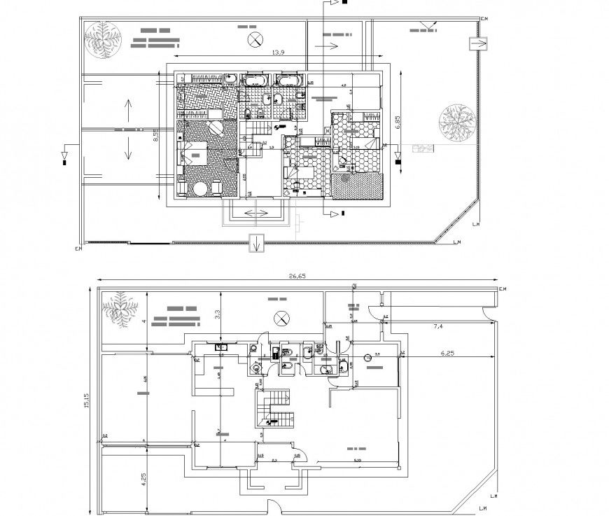
Planning house detail dwg file, dimension detail, naming detail, landscaping detail in tree and plant detail, stair detail, furniture detail in door, bed, cub board, sofa and window detail, flooring tiles detail, balcony detail, north direction detail, etc.
Uploaded by:
Eiz
Luna

