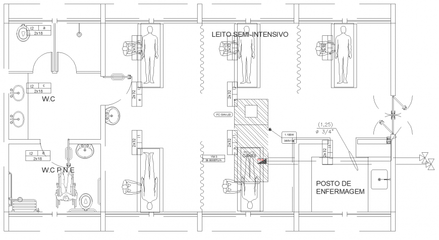
Incentive care unit in hospital plan drawing in dwg file.
Description
Incentive care unit in hospital plan drawing in dwg file. Detail drawing of Incentive care unit in hospital plan with furniture details, medical equipment area details.
Uploaded by:
Eiz
Luna

