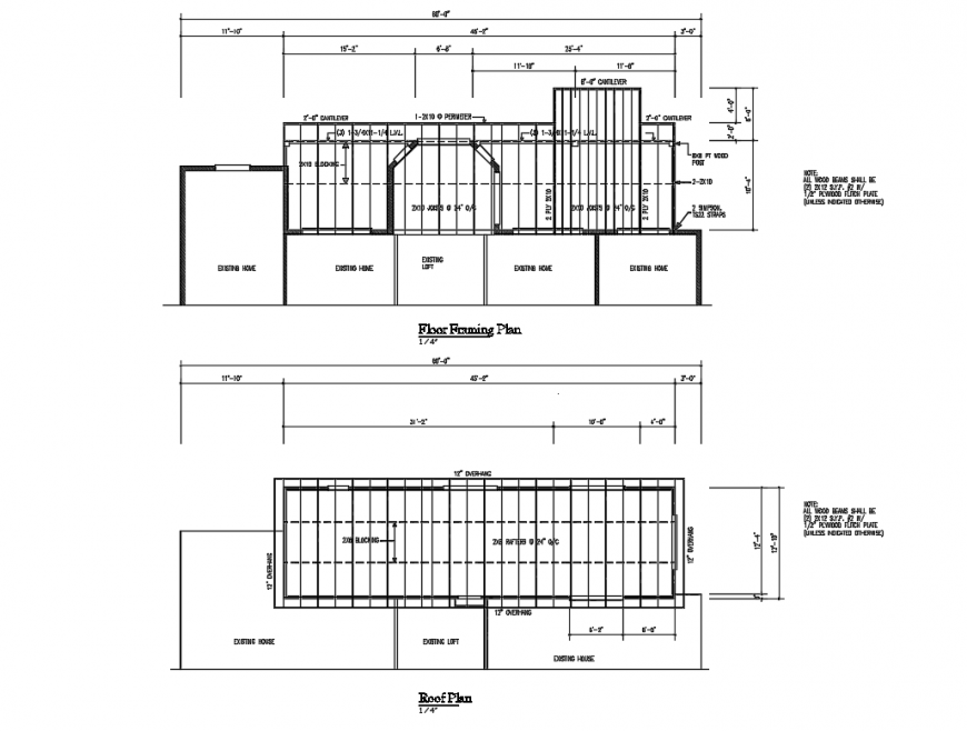
Roof plan and floor framing plan details of house dwg file
Description
Roof plan and floor framing plan details of house that includes a detailed view of existing house, existing loft, over hang, blocking, rafers, existing home, joints, ply wood, perimeter, simpson stramps, cantilever and much more of roof plan and structure details.
Uploaded by:
Eiz
Luna

